
Obec: | Košice-Juh |
---|---|
Okres: | Košice IV |
Kraj: | Košický kraj |
Druh: | Všetky pozemky |
Typ: | Predaj |
Typ pozemku: | Pozemky - komerčné |
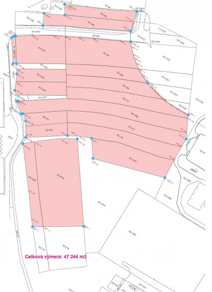
Predáme stavebné pozemky nachádzajúce sa v intraviláne mesta Košice, okres Košice IV, patriace do mestskej časti Košice – Juh, katastrálneho územia Južné mesto o výmere 43 716 m2 , lokalita VŠA. Pozemky sú majetkovo vysporiadané vo vlastníctve spol. LABAŠ s.r.o.
Uvedené územie pre budúcu výstavbu sa nachádza v zastavanom území vyššej občianskej vybavenosti, kde dané územie je zastavané obchodnými centrami Optima, OBI, Hornbach, benzínovou čerpacou stanicou OMV a autopredajňou Citroen a Mazda. Uvedené obchodné centrá sú nízkej zástavby s dobudovanou infraštruktúrou.
Územie je vybavené dopravným napojením z ulice Moldavská svetelnou križovatkou a štvorprúdovou komunikáciou s odbočovaním na parkoviská Hornbach a OBI. Taktiež je vybudovaná sieť peších a cyklistických komunikácií.
Podľa poslednej aktualizácie Územného plánu je funkčné využitie pozemkov pre občiansku vybavenosť (obchod, výstavníctvo, služby, administratíva, kultúra, šport)
V rámci výstavby futbalového štadióna sa plánuje umiestnenie terminálu integrovanej koľajovej dopravy v jeho blízkosti, rozšírenie parkovísk pre futbalový štadión a športovú halu
Podmienky zástavby sú definované v záväzných regulatívoch pre usporiadanie územia
Všetky v dosahu na hranici pozemku
V závislosti na podmienkach.