Používame cookies

Súbory cookie a ďalšie technológie sledovania používame na zlepšenie vášho zážitku z prehliadania našich webových stránok, na to, aby sme vám zobrazovali prispôsobený obsah a cielené reklamy, na analýzu návštevnosti našich webových stránok a na pochopenie toho, odkiaľ naši návštevníci prichádzajú. Viac info

 

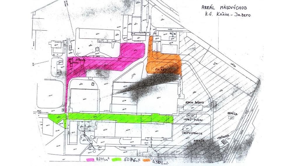
Predaj pozemkov v k.ú. Košice – Jazero

Ulica: Slanecká
Obec: Košice-Nad jazerom
Okres: Košice IV
Kraj: Košický kraj
Druh: Všetky pozemky
Typ: Predaj
Typ pozemku: Pozemky - komerčné
140 €/m2

Popis nehnuteľnosti

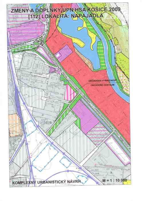
Predáme stavebné pozemky v areáli bývalého Mäsopriemyslu v mestskej časti  Košice – Nad Jazerom o výmere 17 828 m 2 , pri Slaneckej ceste.

Pozemky sú súčasťou  územia, ktoré je podľa platnej územnoplánovacej dokumentácie určené predovšetkým  pre funkciu nezávadnej výroby a skladov ako aj občianskej vybavenosti rôzneho druhu.

Podľa posledných zmien a doplnkov bola Mestským zastupiteľstvom schválená zmena   územného plánu na občiansku vybavenosť – obchodné centrum. V areály sa nachádzajú sklady, výrobné prevádzky, stavebniny, autodielne a pod.

V susedstve je čerpacia stanica, autoumyvárka, novootvorená reštaurácia McD. V blízkej budúcnosti plánovaná výstavba obchodnej galérie. V blízkosti je diaľničný privádzač Košice-Prešov, Košice-Rožňava. V blízkej budúcnosti je naplánované rozšírenie Slaneckej cesty.

Vlastnosti

Status:
voľné
Zobraziť priestor na pôdoryse

Pozrieť na mape

Radi Vám poradíme

Je táto nehnuteľnosť prenajatá?
Kontaktujte nás - dáme Vám vedieť jej aktuálnu dostupnosť.

Podobné nehnuteľnosti