Používame cookies

Súbory cookie a ďalšie technológie sledovania používame na zlepšenie vášho zážitku z prehliadania našich webových stránok, na to, aby sme vám zobrazovali prispôsobený obsah a cielené reklamy, na analýzu návštevnosti našich webových stránok a na pochopenie toho, odkiaľ naši návštevníci prichádzajú. Viac info

 

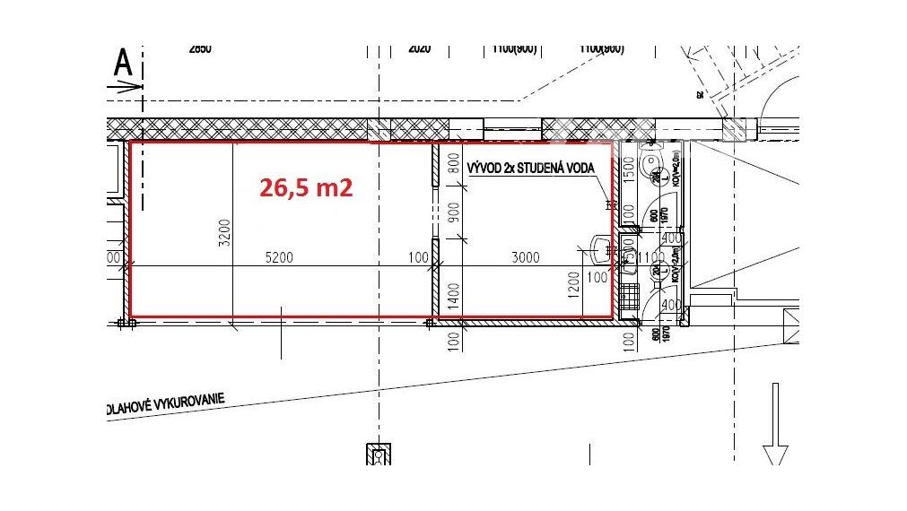
Kvetinárstvo v OC FRESH PLUS Lunik 7 26,5m2

Ulica: Trieda SNP 88
Mestská časť: Luník VII
Obec: Košice-Západ
Okres: Košice II
Kraj: Košický kraj
Druh: Všetky priestory
Typ: Prenájom
Typ objektu: Obchodné objekty
Obsadené

Popis nehnuteľnosti

Vlastnosti

Status:
obsadené
Zobraziť priestor na pôdoryse

Pozrieť na mape

Radi Vám poradíme

Je táto nehnuteľnosť prenajatá?
Kontaktujte nás - dáme Vám vedieť jej aktuálnu dostupnosť.

Podobné nehnuteľnosti