 
                                                                                                            | Ulica: | Povstania českého ľudu 3 | 
|---|---|
| Obec: | Košice-Dargovských hrdinov | 
| Okres: | Košice III | 
| Kraj: | Košický kraj | 
| Druh: | Všetky priestory | 
| Typ: | Prenájom | 
| Typ objektu: | Obchodné objekty | 
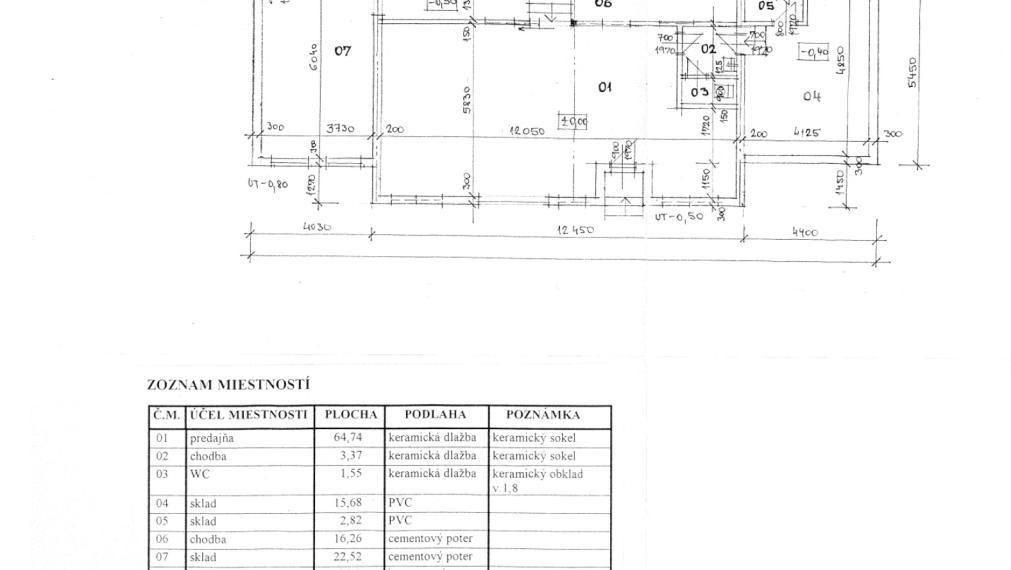
Samostatný priestor s vlastným plynovým vykurovaním, soc. zariadenia , výmera 127m2. Vstup z dvora aj z Maurerovej ulice.